微信号 TheArtTroupeofSHFC
功能介绍 方便各位了解艺术团最新活动事项并有机会参与其中,也会定期向各位报告艺术团消息以及费用报销等。
有一種美叫徽州。
它的美是一種--總是讓我莫名感動的美。
畢昇、朱熹、程大位、詹天佑、胡雪岩、陶行知、胡適,,,
徽商、民居、牌坊、祠堂、徽雕,,,
春天的花海,夏日的荷,秋天的柿子紅,,,
都是我的牽掛。
有一種美就叫做--徽州
我,要,去,徽州。
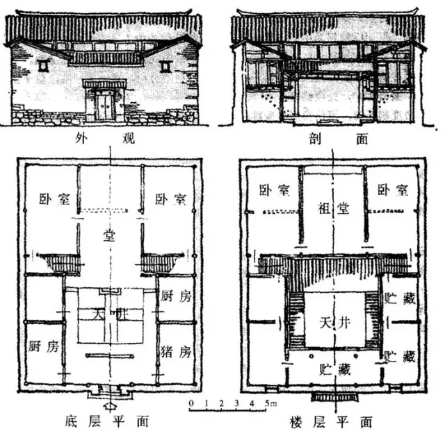
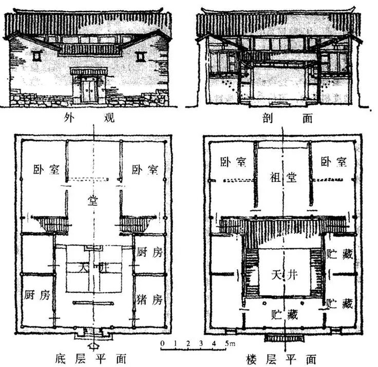
民居平面圖
赞赏
长按二维码向我转账
受苹果公司新规定影响,微信 iOS 版的赞赏功能被关闭,可通过二维码转账支持公众号。
写留言
微信扫一扫关注该公众号